modulo abitativo - pmc prefabbricati e arredo giardino

Via di Pratolungo Casilino,2
00132 - Roma
0622446602 - 0622445605 Whatsapp - 3319986931
E-mail: pmcsas@pmcsas.it
Vai ai contenuti

modulo abitativo

modulo abitativo

per questa tipologia di moduli si effettuano consegne solamente

in zona Italia del centro

modulo abitativo

fase di montaggio del modulo abitativo

moduli abitativi
moduli abitativi usati

  salone         

camera con bagno

modulo abitativo usato
container abitativi
modulo abitativo prefabbricato
container per abitazione

alcuni esempi di progettazione

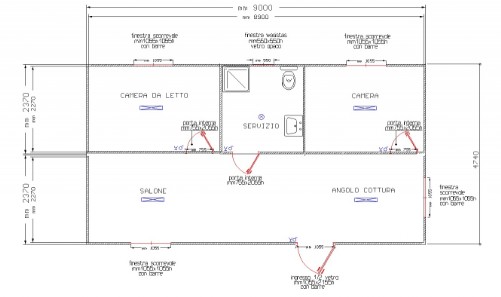
progetto modulo abitativo 1
progetto modulo abitativo

dati tecnici:

Pavimento:

realizzato con telaio costruito con longaroni interamente saldato, completo di travi
longitudinali con una distanza di mm 400, tutto interamente zincato, con pavimento in truciolato ignifugo di spess. mm. 20 con uno strato di linoleum-PVC;

Pareti:

in pannelli sandwich con i lati in lamiera micronervata preverniciata di spess. 6/10 con all'interno una schiuma poliuretanica autoestinguente di sp. mm. 50, i tramezzi interni posso essere realizzati su disegno del cliente;

Soffitto:

la copertura è in lamiera grecata zincata di mm 6/10, il controsoffitto è in pannelli tipo sandwich di spessore mm.35, alle falde vi è la grondaia;
a richiesta possiamo realizzare il doppio tetto in lamiera greca o in pannelli coibentati.

Infissi:   

preverniciati in alluminio completi di accessori e vetri;

Impianto elettrico:   

con tubi in pvc autoestinguente completo di: quadro elettrico, punti luce, punti presa, punti lan, linea telefonica, presa TV etc etc.;

Impianto idrico:  

con sanitari in ceramica completi di rubinetterie e di scarichi,  optional a richiesta tipo: bidet, boiler, set accessori bagno, box doccia. Tutto costruito con tubi a saldare di idonee dimensioni.


Visita i nostri nuovi siti:
arredocemento.it - fiorieredaesterno.it - lavandinidaesterno.it



Termini e condizioni
Resi
Privacy
Torna ai contenuti